L’eranthis, première fleur de l’année...

Eranthis
actualités
2025 !
Concevoir
Ohhh la tête en l'air, j'ai oublié de vous montrer notre carte pour cette nouvelle année
Concertation NPNRU Cronenbourg
Collaborer
La semaine dernière Anne Cécile nous a rejoint sur Strasbourg pour concerter sur les futurs aménagements autour du Stade EXES et en particulier le "triangle" qui demain accueillera des espaces de convivialité, jeux...
Les chantiers dans les écoles sont en cours
Concevoir
C'est parti pour trois nouvelles écoles à Strasbourg, les travaux ont commencé le 8 juillet avec les décroutages, les déblais, la mise en place des structures drainantes...
Les entreprises attaquent maintenant les pavés, les remblais en terre végétale
On revient très vite pour l'avancement école par école

Aménagement des espaces publics et des jardins en coeur d‘îlot de l‘opération Libre-Cours

Grenoble
38, FR
maîtrise
d'ouvrage
Ville de Grenoble | Grenoble Habitat
maîtrise
d'oeuvre
Grenoble Habitat | Eranthis paysagistes | ARA & Aktis architectes | Sinéquanone (VRD)
mission MOE
complète + concertation
en chiffres dates 2019 > 2024
montant travaux 750 000 € M € HT
surfaces 0.8 ha m²
Suite à l’arrêt de l’activité du garage Galtier, le projet prévoit la création de 150 logements et locaux commerciaux dans un contexte urbain dense. Le projet est réparti en 8 blocs entre le cours de la Libération et le chemin Meney. Il a fait l’objet d’une intense concertation.

Le projet comprends ainsi l’aménagement de deux types d’espaces :

- des coeurs d’îlot privés en grande partie sur dalle. Le travail de conception s’attache à offrir aux habitants des coeurs d’îlots végétalisés attractifs et qualitatifs, prenant en compte la présence de ces dalles, tout en apportant des réponses aux problématiques de gestion des eaux pluviales en alternatif.

- une place et une traversée modes doux publics. Il s’agit de créer un espace convivial au droit des commerces, ainsi qu’une traversée répondant aux besoins de végétalisation des riverains, et incluant un square de proximité.

Les aménagements sont caractérisés par des revêtements innovants et drainants (bétons poreux, finitions hydro décapés et talochés) ; la gestion des EP se fait 100% en alternatifs (noues, bassins).

Le projet intègre fortement les ambitions de biodiversité, et notamment de nombreux refuges et passages pour la faune : rampe à hérissons, ainsi que nichoirs pour chauves-souris, petits rapaces, mésanges, martinets, rouge-gorges, etc.
Un travail partenarial avec la LPO a été mené tout au long des études et du chantier.
Aménagement des espaces publics et des jardins en coeur d‘îlot de l‘opération Libre-Cours
Coeur d'îlot intégrant différents nichoirs
Aménagement des espaces publics et des jardins en coeur d‘îlot de l‘opération Libre-Cours
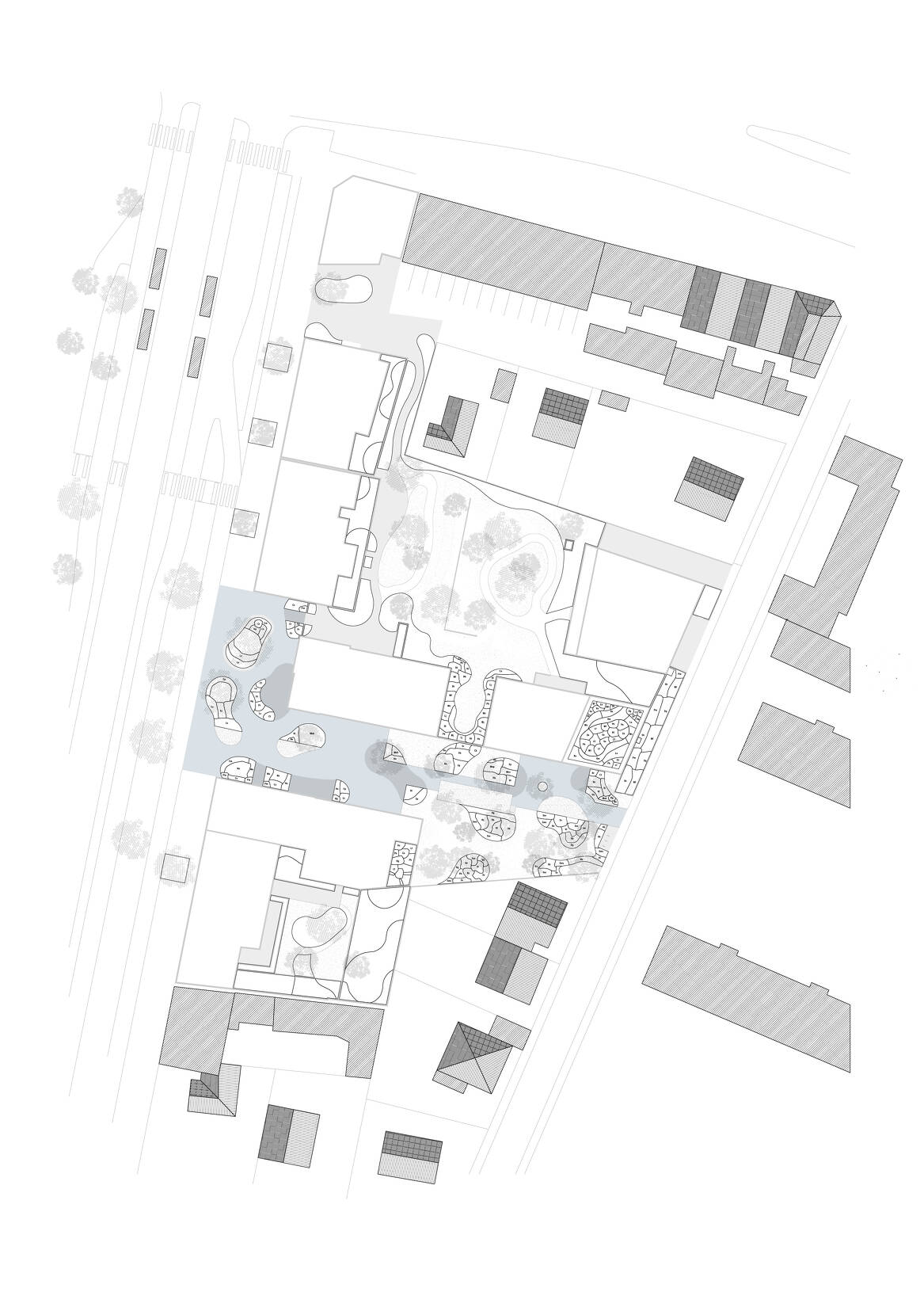
Plan masse de l'aménagement
Aménagement des espaces publics et des jardins en coeur d‘îlot de l‘opération Libre-Cours
massifs plantés de l'opération publique
Aménagement des espaces publics et des jardins en coeur d‘îlot de l‘opération Libre-Cours
Maillage / traversée publique
Aménagement des espaces publics et des jardins en coeur d‘îlot de l‘opération Libre-Cours
Rampe à hérissons dans le coeur d'îlot
Aménagement des espaces publics et des jardins en coeur d‘îlot de l‘opération Libre-Cours
Maillage / traversée publique et système "casse vitesse"
Aménagement des espaces publics et des jardins en coeur d‘îlot de l‘opération Libre-Cours
Bassin de récupération des eaux
Aménagement des espaces publics et des jardins en coeur d‘îlot de l‘opération Libre-Cours
Aménagement d'un des coeurs d'îlot
Aménagement des espaces publics et des jardins en coeur d‘îlot de l‘opération Libre-Cours
Aménagement (sur dalle) d'un des coeurs d'îlot
Aménagement des espaces publics et des jardins en coeur d‘îlot de l‘opération Libre-Cours
Noue / récupération des eaux de toiture
Aménagement des espaces publics et des jardins en coeur d‘îlot de l‘opération Libre-Cours
Ilot végétalisé et assises béton, cours de la Libération
Aménagement des espaces publics et des jardins en coeur d‘îlot de l‘opération Libre-Cours
Maillage / traversée publique
Aménagement des espaces publics et des jardins en coeur d‘îlot de l‘opération Libre-Cours
Ilot planté devant les futurs commerces cours de la Libération
Aménagement des espaces publics et des jardins en coeur d‘îlot de l‘opération Libre-Cours
Nichoirs installés en façade
Aménagement des espaces publics et des jardins en coeur d‘îlot de l‘opération Libre-Cours
Nichoirs installé en pied de façade
Ressources naturelles Eau
Sol
Biodiversité
Aménagement
Renouvellement urbain
Territoire
Espace public
Logement
Équipement
Patrimoine Architectural
Industriel
Paysager
Mobilité Voirie
Multimodal
Temporalité Urbanisme Transitoire
Préfiguration
Concertation

Équipe Pluridisciplinaire

Eranthis est une agence de paysagistes concepteurs, à forte sensibilité en urbanisme et écologie, créée à Lyon en 2007 et devenue une Scop en avril 2023. Elle intervient aujourd’hui en études et maîtrises d’œuvre, depuis Lyon et Strasbourg, au sein d’équipes pluridisciplinaires. Notre agence est de petite taille ; elle s’organise autour des quatre associés, Anne-Cécile Romier Frédéric Dellinger, Anne Vantard et Pierre Desricourt de Lanux.

Atelier & Compétences

Notre travail porte sur l‘espace public, urbain, rural ou industriel, à différentes échelles géographiques et temporelles, de l‘étude de faisabilité et de programmation, à la maîtrise d‘œuvre. Nous intervenons notamment pour les métropoles de Lyon, Grenoble, Saint-Etienne, Strasbourg et Metz, mais également en région parisienne, en Suisse ou en Nouvelle-Calédonie.  

En parallèle de ces missions, nous gardons une activité de recherche et de formation, notamment dans le cadre d‘études et assistances à maîtrise d‘ouvrage, et dans celui de conférences internationales comme celles de l’IFLA, de NOVATECH/GRAIE ou INTERSOL. 

Le point commun de nos études est la recherche de solutions, où notre expertise technique et environnementale se place au service du projet, des usages et du design, dans un souci d‘équilibre entre les capacités d‘un site, les besoins de ses habitants et les moyens (d‘investissement et de gestion) du maître d‘ouvrage. Nous développons notamment notre expérience, projet après projet, sur des enjeux tels que la nature en ville, la gestion alternative des eaux pluviales, les sols fertiles ou la gestion raisonnée des espaces paysagers.

Philosophie de Travail

La philosophie développée maintenant depuis près de 15 ans repose sur l’inscription des aménagements au cœur du récit local ; en nous fondant à la fois sur la mémoire et le patrimoine, mais aussi sur la concertation, nous proposons des aménagements créant les conditions pour permettre à tout un chacun de mener, dans le confort et la sécurité, une vie plus «soutenable» dans son quotidien. 

A l’heure de la ville durable, frugale et résiliente, où la préservation et la gestion des ressources, de la biodiversité, est devenue notre «normalité», à l’heure de mobilités de plus en plus efficaces, et de désirs grandissants de sérénité et de temps libre, nous continuons  à nous réinterroger sur notre démarche de conception, mais aussi sur ce que nous pouvons et devons apporter aux territoires sur lesquels nous intervenons ; il s’agit de proposer des aménagements qui vont permettre aux villes et villages de devenir plus résilients face aux changements climatiques rapides.

Ils sont passés chez nous

Nos anciens collaborateurs :

ANTHOINE-MILHOMME Fanny | BOUTOT Emma | CORMIER-CAILLAULT Jeremie | D'ALMEIDA Benoit | DEROBERT Fanny | FOUGERE Emmanuelle | JOSSERAND Clothilde | LEE Min Hee | MARSURA Stéphanie | PICHANCOURT Mathilde | RIBEIRO Alexandra | SAINT-ONGE Ginette | SATTLER Cédric | ISENMANN Florian


Nos stagiaires :

ANDRE Raphaël | ANTONY Louise | BACHELET Sabine | BERNARD Florian | CARTO Nicolas | CHAPPEX Cyrielle | CLEMENÇON Solène | DESAGRE Julien | DESBAUMES Fanny | DI PASQUALE Alexandra | DURVIE Damine | HE Weijie | HUSSEIN-AGHA Mariam | JOLIVET Sonia | KAFKA Anita | LECOMTE Noémie | LIERY Celine | PELLE Pauline | PINNA Maria-Teresa | REGIS Jade | RIVAT Fanélie | VALENTIN Flora | VAN DER KALLEN Marianne | YAHOUNI Myriam | ZERBINO Léa

 

La transformation en SCOP

Après 15 années d'existance Eranthis fait sa mue !
En avril 2023, nous avons décidé de sauter le pas et de transformer Eranthis en SCOP pour l'adapter complètement à notre philosophie de travail collaboratif. Depuis, 4 associés composent le coeur de l'agence.

Vous pouvez retrouver un article présentant cette transformation sur le site de l'URSCOP en cliquant ici.
Pot à l'agence de Lyon !
Anne-Cécile Romier
gérante
cheffe de projet
Associée
Anne-Cécile Romier Agence Lyon
Associée, gérante, cheffe de projet
diplômes
Urbaniste OPQU
depuis 2021
Paysagiste-concepteur
depuis 2017
Architecte D.P.L.G.
depuis 2000
parcours professionnel
ERANTHIS paysagistes
2011
TOPOS et Lützow 7 (Berlin)
2007 > 2010
JNC International (Bruxelles)
2003 > 2007
Architecture Studio (Paris)
2001 > 2002
Figure Libre (Paris)
2000
Lacoste et Hubert (Paris)
1999
Decq et Cornette (Paris)
1998
projets dirigés
2019 > 2025
2019 > 2023
2012 > 2016
conférences
Anne-Cécile Romier, associée et responsable de notre agence de Lyon, est architecte, paysagiste concepteur et urbaniste OPQU. Très présente sur les projets de la région lyonnaise, elle développe en particulier depuis 2019 notre expertise en agriculture urbaine. A l’agence depuis 2011 ; elle est formée AIPR et au chantier.
Frédéric Dellinger
chef de projet
Associé
Frédéric Dellinger Agence Lyon
Associé, chef de projet
diplômes
Urbaniste OPQU
depuis 2021
Paysagiste concepteur
depuis 1998
Maîtrise de Sciences et techniques de l‘Environnement
1996
parcours professionnel
ERANTHIS paysagistes
depuis 2007
Installation comme architecte-paysagiste libéral
2006
SERALP (Paris)
2003 > 2006
Latitude Nord (Paris)
2001 > 2003
HDK Dutt & Kist (Sarrebruck)
1998 > 2001
projets dirigés
2018 > 2023
conférences
ressources
Frédéric Dellinger, associé (gérant fondateur), est paysagiste concepteur, écologue et urbaniste OPQU. Il est également maître de conférences en Ville et Territoire à l’Ecole d’architecture de Grenoble et membre du laboratoire Architecture Environnement et Cultures Constructives.  Il est présent sur les missions de stratégie et de recherche, ainsi que sur la plupart de nos études et projets sur la métropole de Grenoble.
Son expérience en France et en Allemagne sur les sites pollués lui a permis d‘acquérir un autre regard et un savoir-faire de mise en valeur et de protection de sites naturels anthropophisés ayant développé leur propre valeur écologique.
Anne Vantard
cheffe d'agence
cheffe de projet
Associée
Anne Vantard Agence Strasbourg
Associée, cheffe d'agence, cheffe de projet
diplômes
Formation QGIS
2019
Formation Sol & Substrats
2014
BTS - Jardins espaces verts et pépinières
1990
parcours professionnel
ERANTHIS paysagistes
depuis 2012
ESPAYS (Strasbourg)
1991 > 2012
projets dirigés
2017 > 2021
Anne Vantard, paysagiste, est notre experte interne sur les plantes et substrats. Elle est également en charge de notre agence de Strasbourg et pilote toutes les missions qui y sont attachées. A l’agence depuis 2012 ; elle est formée AIPR et au chantier.


 
Pierre Desriscourt de Lanux
Chef de projet
Associé
Pierre Desriscourt de Lanux Agence Lyon
Associé, Chef de projet
diplômes
Master Design Numérique en Architecture (DNA)
2019
Architecte D.E.
2019
parcours professionnel
ERANTHIS paysagistes
depuis 2020
SNCF Innovation et Recherche (Paris)
2019 > 2020
Houillon paysage (Epinal)
2019
projets dirigés
2017 > 2025
2014 > 2025
Pierre Desriscourt de Lanux est architecte urbaniste, chef de projet, à l'agence de Lyon. Il apporte à l'équipe une dimension architecturale et urbanistique. A l’agence depuis 2020, il est aussi formé AIPR et au chantier.

 
Ségolène Gaillon
Chargée de projet
Ségolène Gaillon Agence Lyon
Chargée de projet
diplômes
Post-Master "Design des mondes ruraux"
depuis 2021
Paysagiste conceptrice
depuis 2021
parcours professionnel
ERANTHIS paysagistes
2024
Atelier Hervé Der Sahakian, Marseille
2022
Résidence Nontron
2021
projets dirigés
Ségolène Gaillon est paysagiste de l'école de la Nature et du Paysage de Blois, chargée de projet. A l'agence de Lyon depuis janvier 2024, elle apporte à l'équipe une vision territoriale et systémique du projet, et réinterroge notre pratique au quotidien. Elle est également formée AIPR et au chantier.
Le portail des communs définit « Les biens communs, ou tout simplement communs, comme des ressources, gérées collectivement par une communauté ; celle-ci établit des règles et une gouvernance dans le but de préserver et pérenniser cette ressource.
Des logiciels libres aux jardins partagés, de la cartographie à l’énergie renouvelable, en passant par les connaissances et les sciences ouvertes ou les AMAPs et les épiceries coopératives, les ‘’communs’’ sont partout !
En d’autres termes on peut définir les communs comme une ressource (bien commun) plus les interactions sociales (économiques, culturelles et politiques) au sein de la communauté prenant soin de cette ressource
 ». 

C’est tout l’enjeu et l’objet de ce volet « transmettre », verser au « pot commun » les connaissances et l’expérience accumulées par notre agence sur des thématiques aussi variées que les questions relatives aux eaux pluviales, à la nature en ville ou à l’urbanisme.
Ces informations se présentent sous formes de conférences, en France ou à l’international, de formations et de publications, mais également des dossiers à télécharger rassemblant les détails techniques et les productions les plus pertinentes développées dans le cadre de nos missions d’études et de maîtrise d’œuvre, présentées ici dans le volet « concevoir ». 
 
Conférences Internationale
France
Formations
PUBLICATIONS
Ressources eaux pluviales
nature en ville
urbanisme